1101 S Sixth Street S
Carolina Beach, NC
Community: Not In Subdivision
Status: Expired
Description
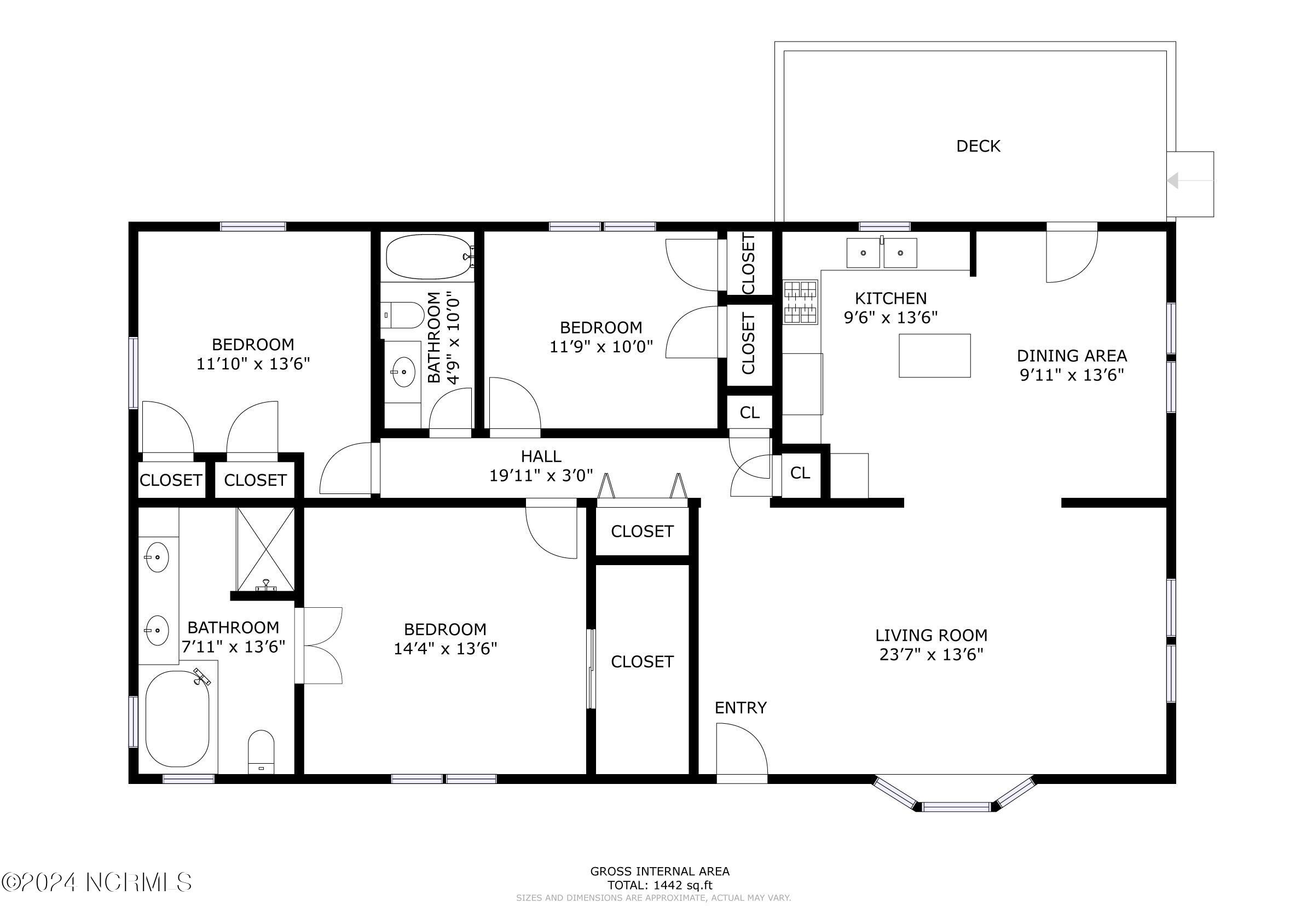
This home boasts incredible features and advantages: it's just five blocks from the beach, offers a spacious kitchen, and includes stainless steel appliances (all of which convey). Additionally, it's located outside of a flood zone, has a proven history of generating long-term rental income, and comes with no HOA fees, allowing for both short-term and long-term rental opportunities! Plus, it comes partially furnished with charming beach-themed decor. With three bedrooms and two full bathrooms, it creates a warm and inviting atmosphere perfect spot to kick back and relax. The master bedroom, a spacious 14 by 13 feet, boasts an en-suite bathroom that's like your own personal spa, featuring a garden tub, a separate shower, and double vanities—talk about luxury! The second bedroom, equally cozy, features large windows that allow natural light to flood the space, creating a bright and cheerful environment. The third bedroom? It's a versatile gem, perfect as a guest room, office, or your very own art studio! The second bathroom features a skylight that lets in an abundance of natural light. The open-concept living area flows right into the kitchen, where stainless steel appliances and stylish Luxury Vinyl Tile flooring create a modern twist. With plenty of cabinets, including a pantry, you'll have all the space you need for your culinary masterpieces. Gather the family in the dining room, and then step out onto the spacious back deck for coffee in the morning or some evening star-gazing, all while surrounded by lush greenery that enhances the serene vibe. Just 4 minute bike ride to the heart of the Carolina Beach boardwalk, or a 13 minute drive to the NC Aquarium at Fort Fisher.
We'll help you find your home
Fill out the form below, or contact us by calling (910) 620.3730 or emailing us at info@shaneregister.com
"*" indicates required fields


































